创新洞察
OUR SUCCESSFUL PRACTICE

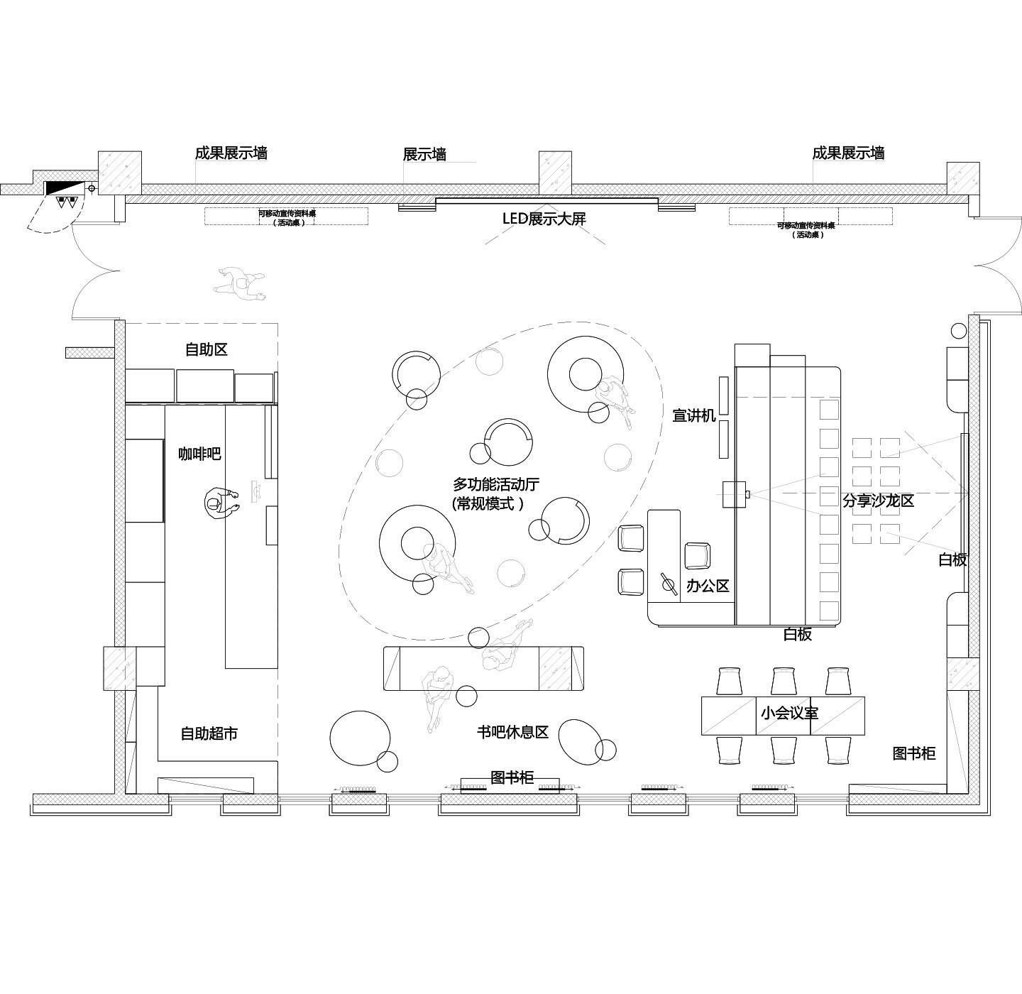
项目背景:
展示新都的窗口、联系服务航空产业人才的纽带、科研技术成果转化平台、人才创新创业孵化平台、航空产业公共技术服务平台。
用户洞察:
提高空间使用率,增强用户的参与感与归属感。
设计策略
OUR SUCCESSFUL PRACTICE
解决方案
OUR SUCCESSFUL PRACTICE


1.规划设计出具有独特体验感的综合性共享空间。
2.以承载不同时段、不同情况下的空间功能。
相关案例
OUR SUCCESSFUL PRACTICE
摩登7是一家用咨询设计的能力,为垂直行业客户,提供产品创新价值的公司。摩登7坚持以用户体验为核心,致力于为企业提供行业整体创新解决方案。如需创新设计咨询,请联系专家团队。
即刻联系
Hello!

微信扫一扫
享一对一咨询
享一对一咨询
在线客服

电话咨询
400 692 9688
申请步骤
1.请现在贵站添加好本站的友情链接,要求:
内容健康、未被百度、google等搜索引擎封杀的网站
网站内容跟设计类有关
网站权重2及以上,日均流量300以上
只接受直接文字链接(下拉框、脚本、页面跳转、嵌入页、翻页等均不算)
2.做好链接后,请通过以下方式联系摩登7
QQ:597473421
3.已经开通我站友情链接并且符合本站友情链接要求的网站,经摩登7咨询与设计网站管理员审核后,可在我方相关页面显示.
我知道啦























